zero-one office(ゼロワンオフィス)のウェブサイトに、「住まい訪問」というページがあります。
すでに入居されたお家に訪問して、住んでみての感想や発見、また完成までのエピソードなどを、紹介しているページです。
■ゼロワンオフィス 住まい訪問
その中で、ARCO / 仙川 のM邸のイメージが個人的には参考になります。
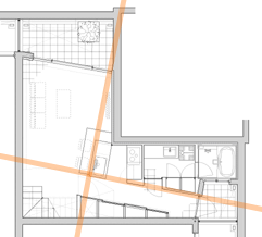
M邸はL字型の間取りなのですが、「斜めの壁」をもうひとつの基準軸にすることで、空間に奥行きをつくり出すことに成功しています。
言葉で説明は難しいですが、実際の壁を少しずらしたヴァーチャルな壁を作ることで奥行きを持たせています。そのバーチャルな壁に沿ってキッチンやクローゼットを配置しています。
我が家はL字型ではないですが、まったくの四角ではないので、こういった「斜めの壁」の手法も使えば面白くなりそうです。
せっかくのコーポラなので、いろいろと試してみたいと思います。当然、予算の範囲内で、という制約付きですが。。。
「コーポラティブハウスという生活」はブログランキングに参加しています。もしよろしければ応援のクリックをお願いします。↓↓↓